• Projects
  • Caisonn 1597 - Spatial Design Project
  • Pan's Labyrinth - Rotunda Set Redesign
  • Transforming a Location
  • 1950s Living Room
  • Centre Pompidou Concept
  • Neue Nationalgalerie - Reimagined
  • The Grand Budapest Hotel - Recreating the Bathhouse
  • City and Landscape - An Imaginary Exploration
  • Enfilade Project
  • Paintings
Contacts
Vlada Bortsova
  • Projects
  • Caisonn 1597 - Spatial Design Project
  • Pan's Labyrinth - Rotunda Set Redesign
  • Transforming a Location
  • 1950s Living Room
  • Centre Pompidou Concept
  • Neue Nationalgalerie - Reimagined
  • The Grand Budapest Hotel - Recreating the Bathhouse
  • City and Landscape - An Imaginary Exploration
  • Enfilade Project
  • Paintings
Contacts

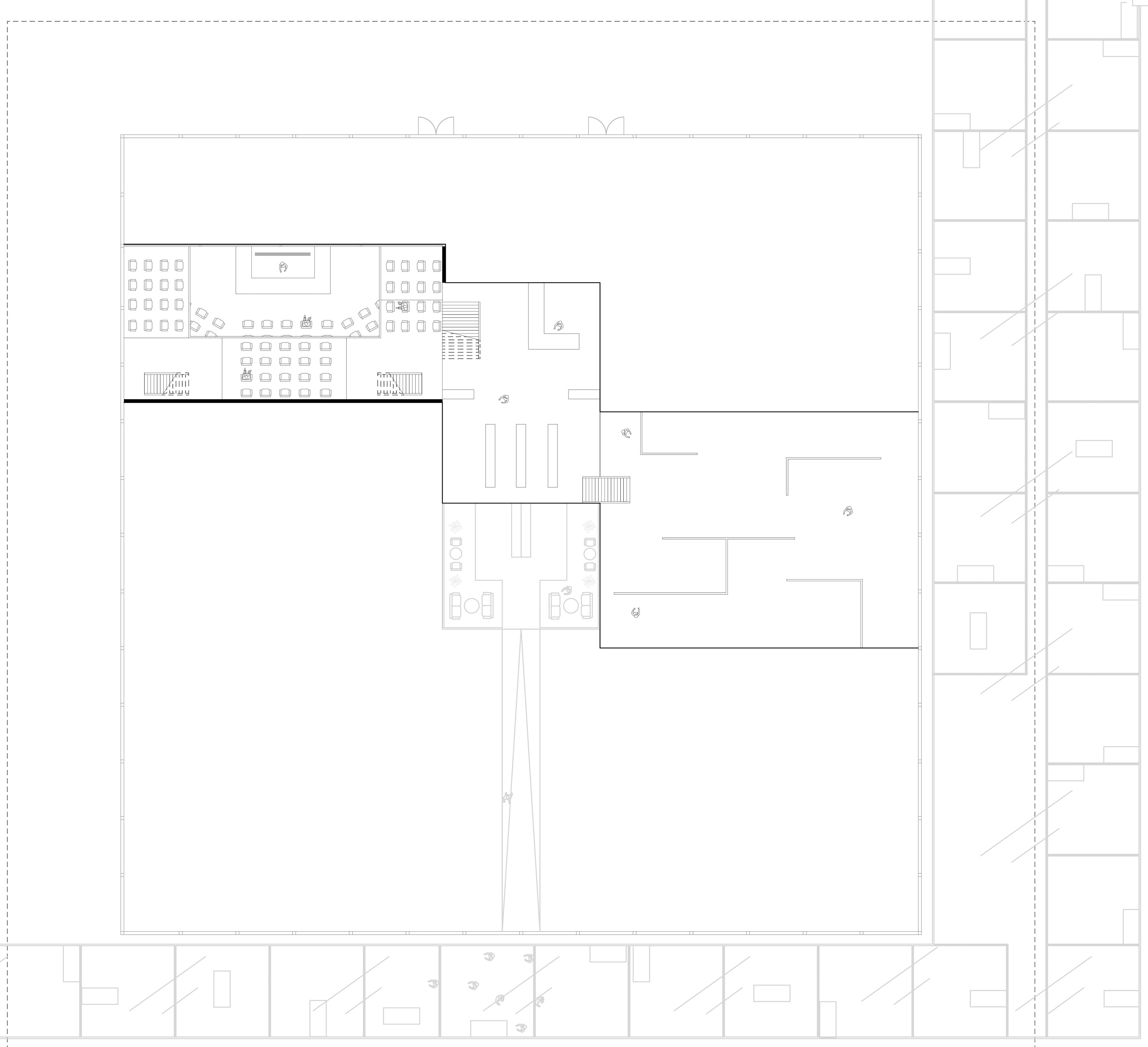
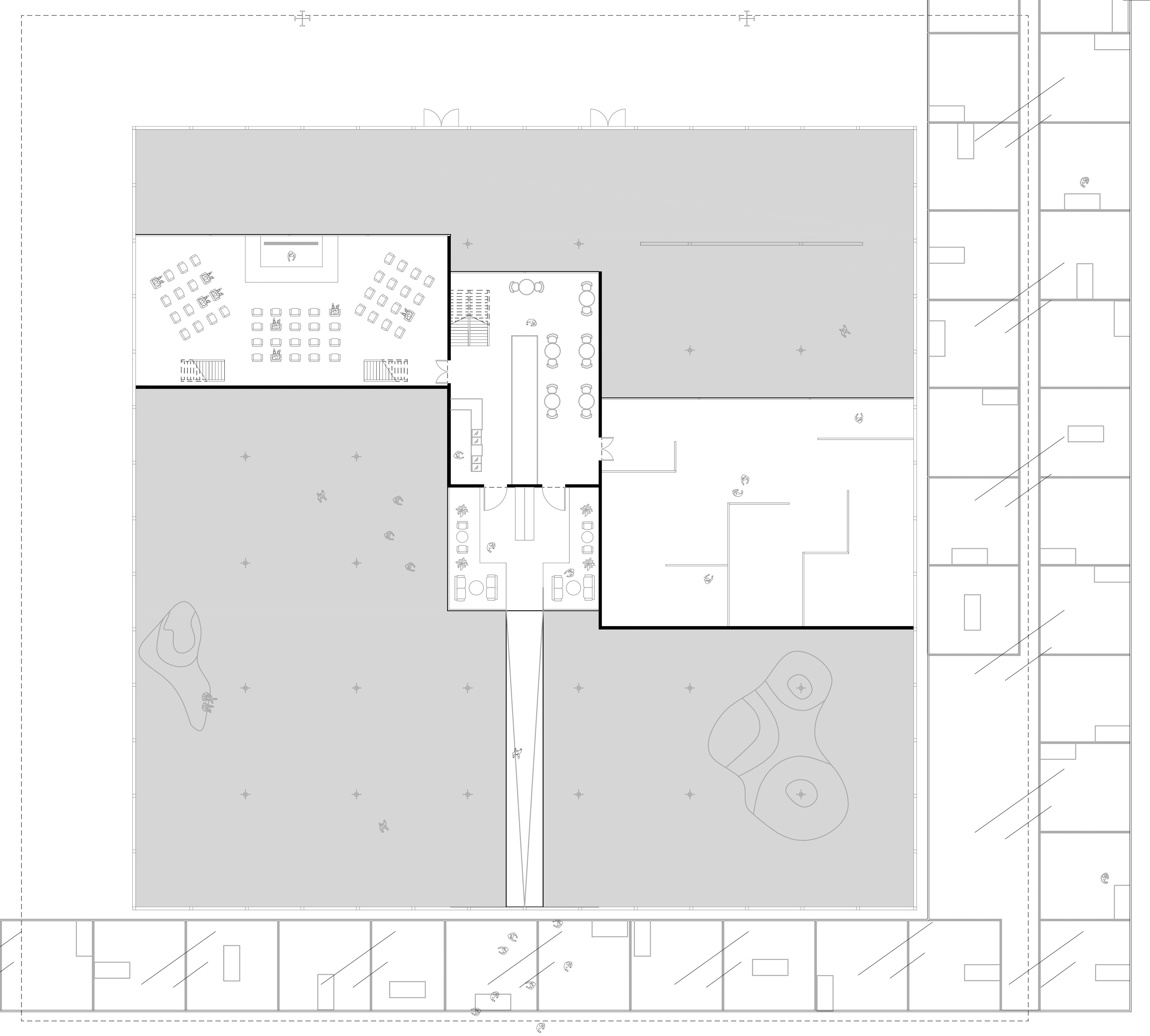
Neue Nationalgalerie - Reimagined

↑Back to Top
Powered by Adobe Portfolio